电液动蝶阀
用 途
电液动蝶阀是一种适用性很强的新型产品,广泛用于建材、冶金、矿山、化工、电力等工业生产过程中,能远程控制或现场控制管道中介质的流量。
特 点
动力源电液推杆其特点是:动作灵敏,运行平稳,能有效缓冲外来的冲击力,行程控制准确,可以带负荷启动,且具有超负荷保护能力。由于电液动蝶阀采用机、电、液一体化全封闭结构,工作油路循球于无压的封闭钢筒里,体积小,不漏油,便于安装,维修。在恶劣的工作环境下,不吸尘,不进水,内部不锈蚀,使用寿命长,不需要任何附属设备,在推力和速度相同的情况下消耗的电能仅有电动推杆的一半。
工作原理
电液动蝶阀以电液推杆作动力源,通过双向齿轮泵轮出压力油,经油路集成块的控制送至油缸,实现活塞杆往复运动,同时通过曲柄转动阀轴、阀板作90°范围旋转,达到调节流量的目的。
型号编制说明

主要零件材料
名称 |
支架、阀体、蝶板 |
阀轴 |
曲柄 |
材料 |
碳素结构钢 |
不锈钢 |
优质钢 |
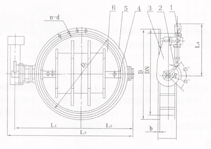
外形与连接尺
外形:操作机构与阀门管垂直连接型式
1、电液推杆
2、曲柄
3、支架
4、阀轴
5、阀休
6、蝶板 |
 |
操作机构与阀门管道水平连接形式
