Y2F-1型电液动两路换向阀
用 途
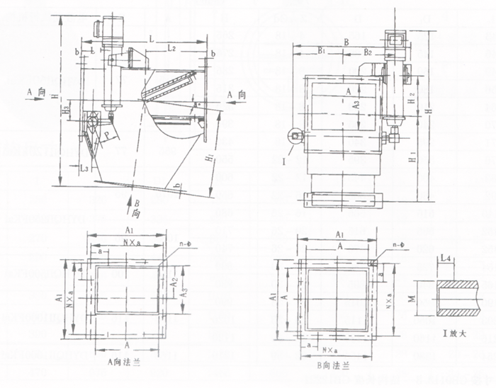
Y2F-Ⅰ系列电液动两路换向阀作为准确可靠的阀门开关,为正压气力输送管道系统中的物料流动提供了可靠的换向。广泛适用于:水泥、水泥生料、石灰石、煤粉、滑石、重晶石以及其他粉粒状物料的输送换向。
电液动两路换向阀的充气阀板采用柔性厚型板式合成纤维织物,是一种新型透气层、具有耐高温(可达150℃),耐腐蚀、耐磨损、吸湿性低、重量轻、表面轻、表面平正、使用寿命长等优点,出料口与空气输送管路之间的倾角分为(图示a°4°、6°、8°、10°、和12°)五种。电液动两路换向机构采用电液推杆作动力源。
选型说明:
型号编制说明

主要外形及连接尺寸