平板闸门
用途
该闸阀广泛适用于建材、冶金、矿山等行业粉尘物料流量控制的管道上,是控制粉尘物料流量的理想设备。
特点
该闸阀结构简单,重量轻,操作灵活,装拆方便,采用优质碳素钢制造,其强度高,性能好,使用寿命长;丝杆及螺母采用了软防护罩结构,不受外界粉尘影响。
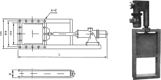
工作原理
该闸门主要由框架、丝杆螺母、手轮、闸板组成,手轮(链轮)转动,丝杆带着丝杆螺母和闸板作水平方向的往复运动,达到阀门的启闭目的。
型号编制说明

主要性能参数
| 公称压力(MPa) |
0.6 |
| 适秀温度(℃) |
≤150 |
| 适用介质 |
粉尘物料 |
外形及连接尺寸
1、SLV(D、S)-0.6型手动式平板闸门
用途

特点

2.DYLV-0.6型电液动推杆平板闸阀
用途
该闸阀是我厂改进产品,质量可靠。它广泛地用于冶金、矿山、建材等行业,是控制粉尘物料流量的理想设备。
特点
1、本阀门操作方便,结构简单。
2、性能好,使用寿命长。
工作原理
该闸阀主要由框架、闸板、电液装置等零件组成。工作时,活塞杆受液压力作用带动闸板作水平方向的往复运动,达到闸门的启闭目的。
型号编制说明

主要性能参数

主要外形及连接尺寸

3.DPZ-□型电液动平板闸门
